Beschrijving
Ben je op zoek naar een fijne (gezins)woning?
Dan is deze twee-onder-een-kapwoning met aan- en opbouw (2006), gelegen aan de Koningin Wilhelminastraat 37 in Overasselt, precies wat je zoekt.
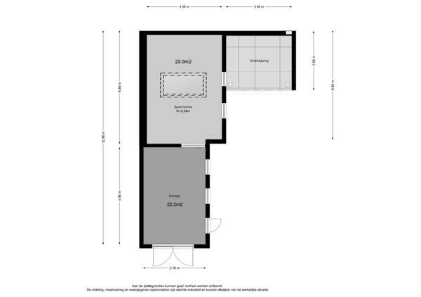
Deze woning bevindt zich in een rustige, ruim opgezette wijk en beschikt over een uitgebouwde vrijstaande garage van maar liefst 53 m² met eigen ingang. Momenteel wordt de garage deels gebruikt als gymruimte, maar biedt volop mogelijkheden. De woning heeft 3 slaapkamers van een prettig formaat aangevuld met een zonnige achtertuin die veel privacy biedt.
Kortom, Koningin Wilhelminastraat 37 is de ideale plek om aan je nieuwe avontuur te beginnen.
Maak snel een afspraak met de makelaar en ervaar het zelf!
Indeling:
De woning beschikt over een gezellige doorzon-woonkamer van 35 m², die direct in verbinding staat met een halfopen keuken van 10 m². De keuken is voorzien van diverse inbouwapparatuur waaronder een kookplaat, afzuigkap, oven, koelkast en een vaatwasser. Vanuit de keuken is een “ouderwetse” kelder te bereiken, ideaal voor extra bergruimte. Het toilet bevindt zich in de bijkeuken aan de achterzijde van de woning die tevens voorzien is van de witgoedaansluitingen en de verdeler van de vloerverwarming. De entree bij de voordeur, inclusief garderobe biedt toegang tot de trap naar de bovenverdieping.
Op de eerste verdieping bevinden zich drie slaapkamers en de badkamer. De slaapkamers hebben allen een goed formaat van circa 10 m², 12 m² en de ouderslaapkamer van zelfs 18 m² die bovendien is voorzien van een inbouwkast. De badkamer (8 m²) is uitgerust met een wastafel, inloopdouche, ligbad, vloerverwarming, designradiator en een tweede toilet. De raamkozijnen op de verdieping bestaan uit kunststof draai-kiep ramen met rolluiken. Via een vlizotrap is de bergzolder bereikbaar waar zich de cv-combiketel (Nefit combiketel, bouwjaar 2015) bevindt.
Via een openslaande houten poort is de achtertuin bereikbaar waar zich ook de garage van 53 m² met een pulspomp bevindt. Deze garage is ideaal als stallingsruimte maar biedt ook volop mogelijkheden als hobby- of werkplaats. De verzorgde achtertuin ligt op het oosten en beschikt over een overkapping, kunstgras, borders met beplanting en een ruim terras dat zich uitstrekt bij de openslaande tuindeuren van de woonkamer. De mooie groene voortuin is keurig aangelegd en de inrit biedt voldoende ruimte om eigen auto’s op eigen terrein te parkeren.
De woning is op slechts vijf minuten loopafstand van de Maasdijk en uiterwaarden van de Maas waar u kunt genieten van prachtige, dagelijks wisselende vergezichten. Daarnaast zijn alle voorzieningen in dit leuke dorp aanwezig zoals winkels, gezondheidszorg, basisschool, openbaar vervoer en een actief verenigingsleven met o.a. een filmcafé, theater en diverse activiteiten in het Verenigingsgebouw.Overasselt biedt u dus alle dagelijkse voorzieningen. Nijmegen, Cuijk en Grave liggen op 10-15 autominuten afstand.
Bijzonderheden:
CV ketel Nefit combiketel 2015
2006 uitbouw met opbouw gerealiseerd
Vrijstaande garage van maar liefst 53 m²
Definitief energielabel C (afgegeven in 2026)
Vloerverwarming begane grond en badkamer
Grotendeels HR++ glas en kunststof raamkozijnen
Bij deze verkoop zijn de asbestclausule en ouderdomsclausule van toepassing