Beschrijving
Instapklare hoekwoning op een ideale locatie in Heumen!
Welkom bij deze prachtige hoekwoning met garage aan de Dorpstraat 20 in Heumen. Deze moderne woning, gebouwd in 2017, biedt alles wat u zoekt in een prettig (t)huis. Of u nu een jong gezin bent dat op zoek is naar een fijne plek om te groeien, of iemand die klein wil wonen in een instap klaar huis, deze woning is ideaal voor u.
Maak snel een afspraak en ontdek zelf wat deze woning u te bieden heeft!
Indeling:
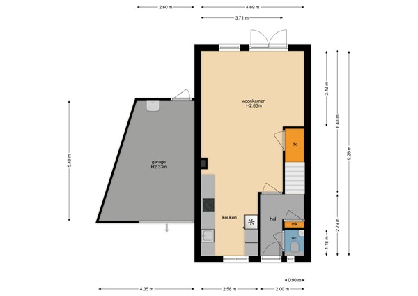
Bij binnenkomst in deze recent gemoderniseerde woning maak je entree d.m.v. de hal, waar je de meterkast en de toiletruimte met vrijdragend toilet vindt. Tevens bevindt zich hier naar de trap naar de 1ste verdieping.
De woonkamer/keuken van 34 m² is voorzien van nieuwe visgraat PVC-vloer en biedt via de tuindeuren toegang naar op het noorden gelegen achtertuin. Aangrenzend aan de woonkamer bevindt zich de luxe, halfopen keuken (bouwjaar 2025), uitgerust met moderne apparatuur van het merk Bosch zoals een inductiekookplaat, afzuigkap, koelkast, vriezer, grote oven en een vaatwasser.
Op de eerste verdieping zijn er 3 slaapkamers van respectievelijk 15 m², 10 m² en 6 m². Deze slaapkamers zijn voorzien van een laminaatvloer houten kozijnen (geschilderd in 2025) met HR beglazing en radiatoren. De reeds gemoderniseerde badkamer (5 m²) is uitgerust met een wastafelmeubel, anti condens spiegel, designradiator, mechanische ventilatie, inloopdouche en een toilet.
De tweede verdieping, bereikbaar via een vaste trap, zolderverdieping of riante 4de slaapkamer met een dakkapel aan de voor- en achterzijde die zorgen voor meer dan voldoende natuurlijk licht. Deze ruimte beschikt over aansluitingen voor de wasmachine en bevindt zich de cv-combiketel Remeha Tzerra bouwjaar 2010.
De woning beschikt over een voortuin die nu dient als parkeergelegenheid voor meerdere auto’s en een achtertuin. De achtertuin is nu voorzien van een terras, gazon en nette erfafscheiding. Parkeren is eenvoudig, 1 of zelfs 2 auto’s op eigen terrein.
De ligging van deze hoekwoning is ideaal; op loopafstand van een basisschool, perfect voor gezinnen met jonge kinderen.
Laat deze unieke kans om deze prachtige eengezinswoning in Heumen te bezichtigen niet aan je voorbijgaan!
Vul snel het contactformulier in en plan een afspraak voor een bezichtiging. Dit is jouw kans!
LIGGING:
Heumen is één van de vier kerkdorpen van de Gemeente Heumen. Prachtig gelegen tussen de rivier de Maas, het Maas-Waalkanaal, natuurgebied de Erpenwaai en de Heumense Bossen.
In het dorp wonen ongeveer 1700 inwoners. Het dorp heeft een rijk verenigingsleven. Er zijn verenigingen voor: voetbal, korfbal, skate-/skeeler- & natuurijs, tennis, judo, toneel, carnaval, biljart, vogelliefhebbers en er is een jeugdvereniging, muziekvereniging en niet te vergeten het St. Georgiusgilde één van de oudste gilden van Nederland. Aanwezige voorzieningen in het dorp zijn o.a. de basisschool St. Joris, BSO , café/cafetaria, skate-skeeler-schaatsshop, jachthaven, manege en een verenigingsgebouw.
Bezienswaardigheden zijn o.a. het gedenkteken bij de sluis dat herinnert aan de meidagen van 1940 toen hier kort maar fel werd gestreden tegen de Duitse invallers.
Het fraaie 16e- eeuwse gotische kerkje van Heumen met een reliëfsteen die ons herinnert aan de slag op de Mookerheide in 1574. Het atelier(museum) van Jac Maris aan de Looistraat te Heumen en het rentmeestershuis aan de Dorpsstraat zijn eveneens prachtige bezienswaardigheden. Via een pad langs het rentmeestershuis komt u op de Maasdijk vanwaar u een prachtig uitzicht heeft over de uiterwaarden. Als u de Maasdijk volgt komt u langs een aantal dijkdoorbraken de zogenaamde “kolken”. Een stuk ongerepte natuur waar u heerlijk kunt wandelen en/of vissen
Op slechts 3 kilometer van Malden met een uitgebreid winkelcentrum, gezondheidscentrum, restaurants, bioscoop etc. etc.
BIJZONDERHEDEN:
Instapklare hoekwoning, ideaal voor bijvoorbeeld jonge gezinnen
Luxe keuken 2025 volledig vernieuwd met Bosch inbouwapparatuur (5jaar garantie)
Glasvezelnetaansluiting
Woning is volledig geïsoleerd en voorzien van een energielabel A
cv-combiketel Nefit bouwjaar 2017
woning beschikt over een achterom
Basisschool in de nabijheid.
Alle voorzieningen in de nabijheid o.a. Malden en Overasselt op 3 km. met winkelcentra, openbaar vervoer, gezondheidscentrum en bosrijke omgeving.
Op slechts 8 kilometer afstand van Nijmegen met al haar voorzieningen en Malden
Openbaar vervoer (bus) richting Nijmegen op 5 minuten fietsafstand en treinstation Molenhoek op ca. 10 minuten fietsafstand.
Goede bereikbaarheid aansluitingen A73 en A50.
Nijmegen/ziekenhuizen/universiteit op ca 35 minuten fietsafstand !