Beschrijving
Al geruime tijd op zoek naar de speld in de hooiberg?
Ontdek deze unieke bungalow, gevestigd in een voormalig bankgebouw, hoe bijzonder is dit?
Deze woning biedt een ruime en lichte woonkamer, riante eetkeuken, prettige slaapkamer, badkamer, separaat toilet, inpandig te bereiken garage en een verrassende kelder.
Wacht niet langer en maak van deze prachtige levensloopbestendige woning uw nieuwe thuis!
Kortom, een bijzondere woning met nog veel potentieel op een mooie locatie.
Neem snel contact met ons op voor een bezichtiging!
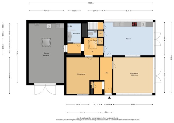
Indeling:
Entree/hal met meterkast, garderobe, doorgang naar de eetkeuken en de woonkamer.
De lichte woonkamer (25m²) beschikt over elegante en suitedeuren die leiden naar de gezellige leefkeuken (28m²) , de perfecte plek om samen te koken, eten en of te borrelen . De grote slaapkamer (18m²) biedt comfort en rust terwijl de badkamer en het aparte toilet zorgen voor extra gemak.
Daarnaast beschikt de bungalow over een grote inpandig te bereiken garage (36m²), ideaal voor auto en opslag en is de woning onder keldert voor extra bergruimte. De compacte maar fijne tuin is perfect om te genieten van tuinieren, de buitenlucht en de zon.
Parkeren kan op eigen terrein, voor de garage is er voldoende plaats voor 2 auto’s.
Ligging:
Heumen is een van de vier kerkdorpen binnen de Gemeente Heumen en ligt op een prachtige locatie tussen de rivier de Maas, het Maas-Waalkanaal, natuurgebied de Erpenwaai en de Heumense Bossen. Het dorp telt ongeveer 1.700 inwoners en beschikt over een rijk verenigingsleven. Zo zijn er verenigingen voor voetbal, korfbal, tennis, judo, toneel, carnaval, biljart, vogelliefhebbers, een jeugdvereniging en een muziekvereniging. Daarnaast is het St. Georgiusgilde, een van de oudste gilden van Nederland hier actief.
In Heumen zijn diverse voorzieningen aanwezig zoals de basisschool St. Joris, een BSO, een café/cafetaria, een skate-, skeeler- en schaatsshop, een jachthaven, een manege en een verenigingsgebouw. De omgeving biedt ook verschillende bezienswaardigheden. Zo herinnert het gedenkteken bij de sluis aan de meidagen van 1940, toen hier kort maar hevig werd gevochten tegen de Duitse invallers. Het fraaie 16e-eeuwse gotische kerkje van Heumen, met een reliëfsteen dat herinnert aan de slag op de Mookerheide in 1574, is eveneens de moeite waard.
Verder zijn het atelier (museum) van Jac Maris aan de Looistraat en het rentmeestershuis aan de Dorpstraat populaire bezienswaardigheden. Via een pad langs het rentmeestershuis komt u op de Maasdijk, waar u een prachtig uitzicht heeft over de uiterwaarden. Volgt u de Maasdijk, dan komt u langs enkele dijkdoorbraken, de zogenaamde “kolken”, een stuk ongerepte natuur waar u heerlijk kunt wandelen en vissen.
Op slechts drie kilometer van Heumen ligt Malden, met een uitgebreid winkelcentrum, een gezondheidscentrum, restaurants, een bioscoop en andere voorzieningen. Daarmee biedt Heumen een mooie combinatie van landelijke rust, cultuur en nabijheid tot voorzieningen.
Bijzonderheden:
- Definitief energielabel C geldig tm maart 2036
- 2002 is het voormalig bankgebouw verbouwt naar deze unieke bungalow
- Maart 2026 dak opnieuw geïsoleerd en nieuwe dakbedekking geplaatst, lichtkoepels vervangen, boeiborden vervangen, en buiten schilderwerk gedeeltelijk gedaan (rode delen).
- Krachtsroom aanwezig in garage
- Bouwtechnisch rapport aanwezig maart 2026
De volgende clausules zijn bij deze verkoop van toepassing:
- Niet-bewonersclausule
- Ouderdoms clausule
- Asbestclausule